Deux destinations
La maison est située dans le village de Naujac-sur-Mer. Sa surface est répartie sur deux étages, au sein d’une bâtisse ordinaire à laquelle viennent se greffer des extensions de bric et de broc sur le jardin. La contrainte majeure imposée par la maîtrise d’ouvrage se cristallise dans sa demande de scinder le bien en une habitation et un local médical. Ce besoin nécessite de retrouver la surface perdue de l’activité au sein de la maison en réinterrogeant intégralement les extensions existantes.
Déconstruire pour mieux reconstruire
Cette démarche radicale n’affecte que les éléments ajouter au bâtiment principal. L’objectif est de clarifier son volume en déconstruisant les appendices, aux multiples défauts, qui se sont accumulés au fil du temps afin de repartir sur une base saine.
Séparation des programmes
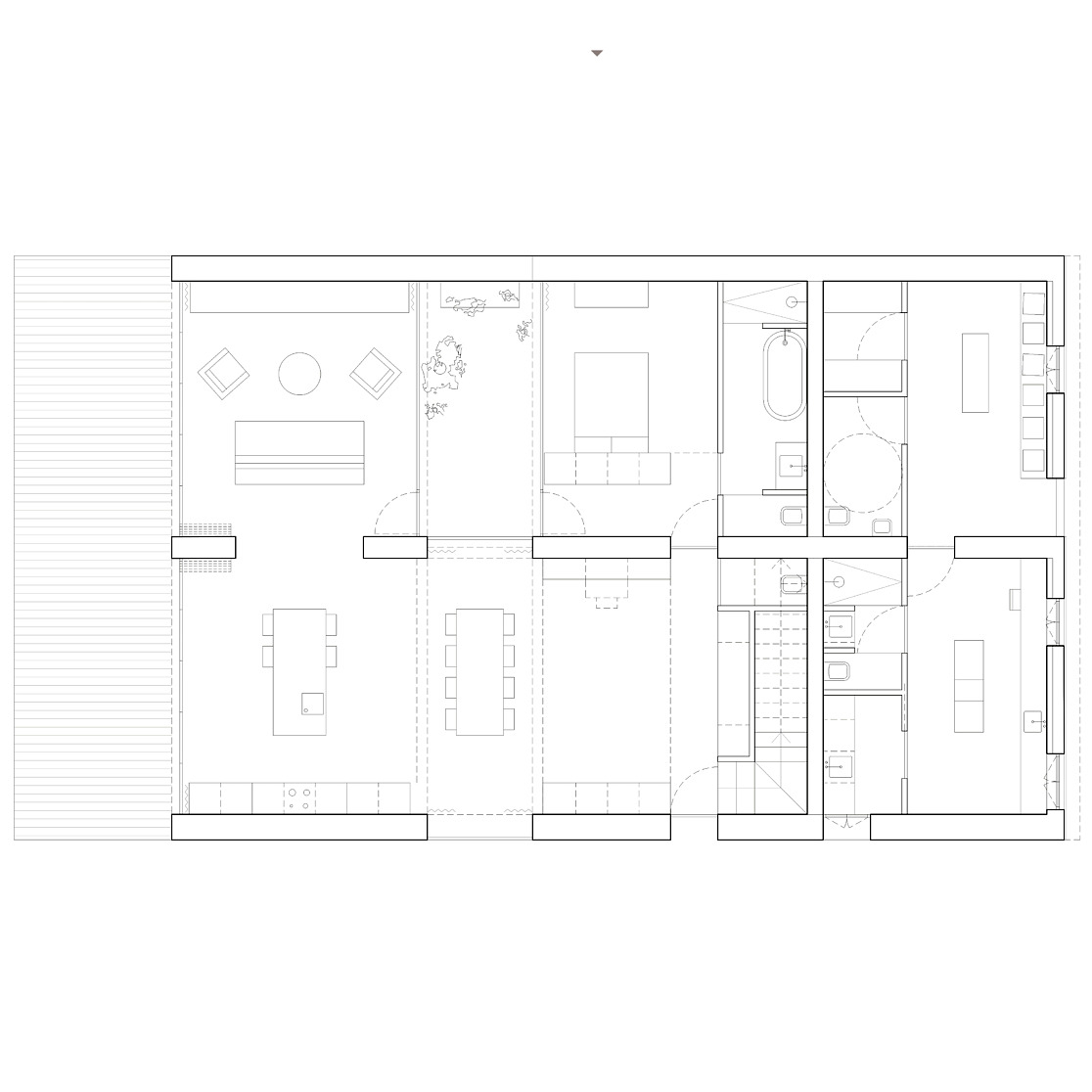
L’enjeu du projet se trouve dans la délimitation, efficace, du local d’activité avec celle de l’habitation. En considérant que l’un est public et l’autre privée, nous avons fait le choix de consacrer le rez-de-chaussée donnant sur la rue du village au cabinet médical. Quant à l’habitation, elle profite du jardin privatif et d’un étage donnant sur la grande place végétalisée du village. Leur séparation est mise en place par une bande technique regroupant les pièces d’eau, des rangements et la circulation. Ce tampon d’usage est une pierre deux coups puisqu’il assure une isolation phonique entre les deux programmes et regroupe les points d’eau efficacement pour une maîtrise des coûts.
Suivre les tracés existants
Une fois l’intérieur purgé et les deux programmes séparés, l’extension devient le sujet à traiter pour respecter les besoins en surface de la maîtrise d’ouvrage. Les trois refends porteurs de la maison deviennent le support du projet. Leur prolongement lie les deux constructions en plan. En coupe, la mise en place d’une pente similaire à l’existant pour l’extension accentue également leur dialogue.
Pour répondre aux différentes problématiques de lumière naturelle, l’entre murs, est entièrement vitré avec des poutres transversales comme guide pour les fenêtres et contreventement pour les murs. Ce dispositif traversant scelle, à la fois, la connexion visuelle et physique entre les deux bâtiments.
Un projet à double destination de programme mettant en valeur l’existant par la continuité et l’adaptation de son dispositif structurel.


